Челябинск, Жилой комплекс Никс Про на Лесопарковой
Площадь
Жилая
Кухня
Отделка
Класс жилья
Комнат
Номер кв.
Этаж
В продаже 2-комнатная квартира в востребованном жилом комплексе "ЖК НИКС Про на Лесопарковой" 🏢
Квартира расположена на 2-м этаже 25-этажного дома.
Отличный вариант для инвестиций.
Продуманная планировка: 📐
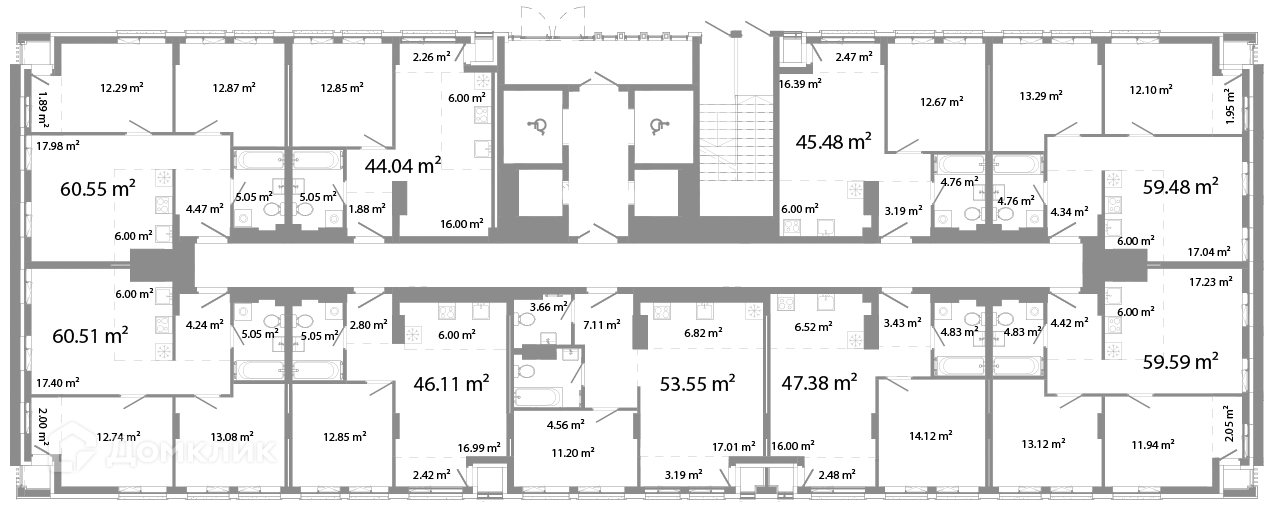
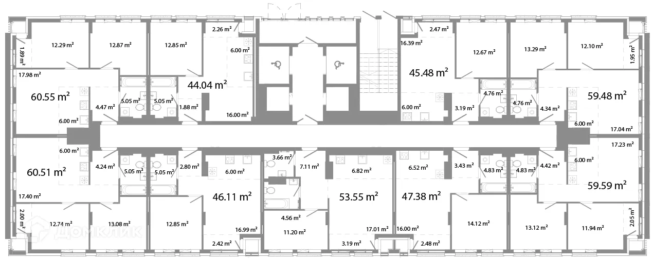
✅ Общая площадь: 47.38 м².
✅ Уютная жилая площадь: 30.12 м².
✅ Кухня: 6.52 м² — идеальна для семейных ужинов.
Особенности квартиры: ✨
🔧 Вариант отделки: грубая отделка. Готовая база для вашего интерьера.
🌞 Увеличенные оконные проемы наполняют помещения природным светом.
🌿 Класс жилья: Бизнес — высокое качество строительства.
Финансы и ипотека: 💰
💳 Ипотека от 69 942 руб/мес.
🏦 Подходит под семейную и IT ипотеку.
🤝 Эскроу-счета гарантирует надежность.
Чтобы забронировать эту квартиру бесплатно и проверить актуальную стоимость — свяжитесь с нами прямо сейчас! 📞
Параметры новостройки в ЖК НИКС Про на Лесопарковой:
• Номер квартиры - 4
• Вариант отделки - грубая отделка
• Площадь - 47.38 м²
• Жилая Жилая - 30.12 м²
• Площадь кухни - 6.52 м²
• Класс жилья - Бизнес
• Комнат - 2-комнатная квартира
• Этаж - 2
• Дом - 25-этажный
Полезная информация о ЖК НИКС Про на Лесопарковой
Для тех, кто готов жить по максимуму и знает цену высокому уровню жизни.
Современный жилой комплекс бизнес-класса, состоящий из 5 башен переменной этажности, объединенных единым паркингом, большим двор-парком с детской площадкой, зонами активного и спортивного отдыха.
Клубный квартал расположен в Центральном районе г. Челябинска рядом с сосновым бором.
К продаже доступны квартиры с черновой отделкой.
Срок сдачи: 4 кв. 2027 г.
Срок сдачи: 4 кв. 2027 г.
Площади квартир
Этажность
Отделка
Класс жилья
Количество корпусов
Тип стен