Челябинск, Жилой комплекс Никс Про на Лесопарковой
Площадь
Жилая
Кухня
Отделка
Класс жилья
Комнат
Номер кв.
Этаж
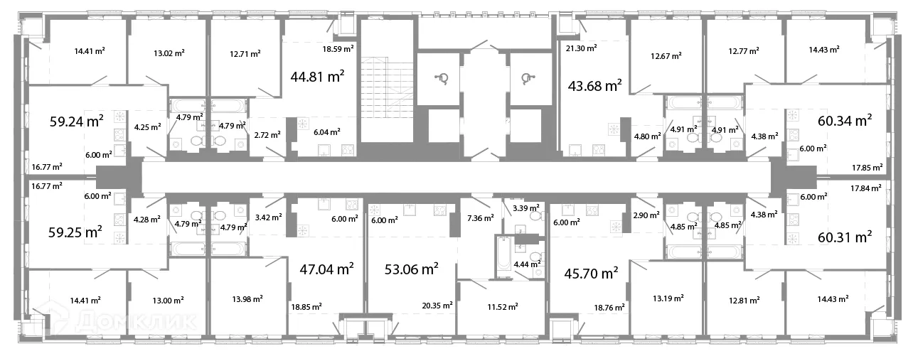
Доступна к покупке 3-комнатная квартира в востребованном жилом комплексе "ЖК НИКС Про на Лесопарковой" 🏢. Квартира расположена на 12-м этаже 25-этажного дома. Прекрасный выбор для комфортной жизни.
Чтобы забронировать эту квартиру бесплатно и проверить актуальную стоимость — позвоните нам прямо сейчас! 📞
Для тех, кто готов жить по максимуму и знает цену высокому уровню жизни. Современный жилой комплекс бизнес-класса, состоящий из 5 башен переменной этажности, объединенных единым паркингом, большим двор-парком с детской площадкой, зонами активного и спортивного отдыха. Клубный квартал расположен в Центральном районе г. Челябинска рядом с сосновым бором. К продаже доступны квартиры с черновой отделкой.
Срок сдачи: 4 кв. 2027 г.
Срок сдачи: 4 кв. 2027 г.
Площади квартир
Этажность
Класс жилья
Корпусов
Стены