Челябинск, Маршала Чуйкова, 28 стр
Площадь
Жилая
Кухня
Отделка
Класс жилья
Комнат
Номер кв.
Этаж
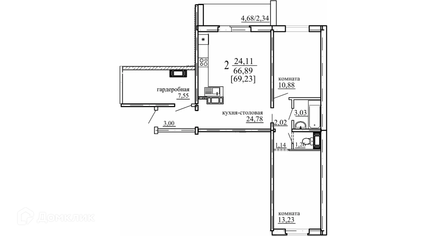
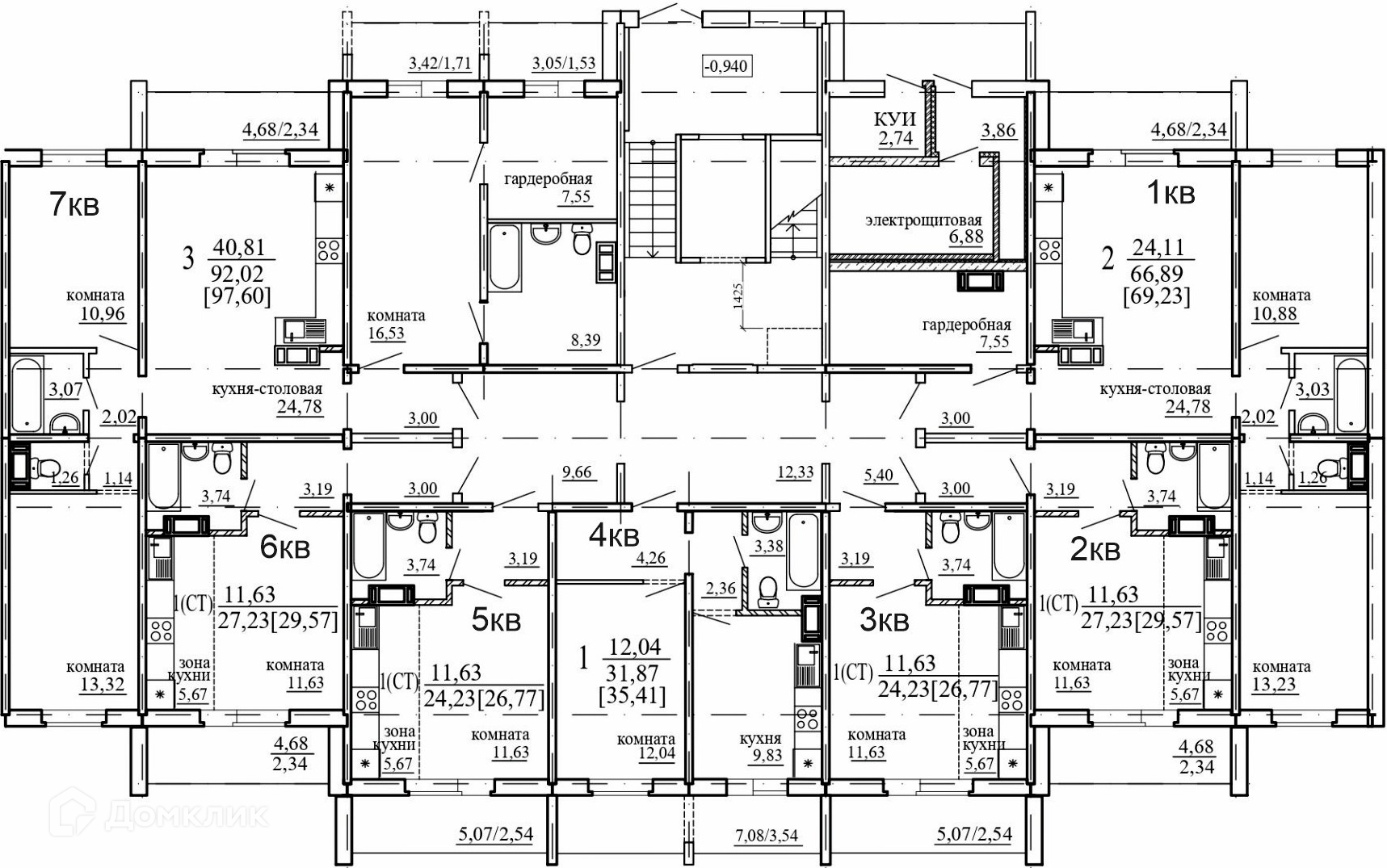
Доступна к покупке 2-комнатная квартира в современном жилом комплексе "ЖК Хорошее решение" 🏢
Квартира расположена на 1-м этаже 11-этажного дома.
Отличный вариант для комфортной жизни.
Продуманная планировка: 📐
✅ Общая площадь: 66.89 м².
✅ Уютная жилая площадь: 24.11 м².
✅ Кухня: 24.78 м² — идеальна для семейных ужинов.
Особенности квартиры: ✨
🔧 Вариант отделки: грубая отделка. Готовая база для вашего интерьера.
🌞 Увеличенные оконные проемы наполняют помещения естественным светом.
🌿 Класс жилья: Эконом — высокое качество строительства.
Финансы и ипотека: 💰
💳 Ипотека от 51 057 руб/мес.
🏦 Подходит под семейную и IT ипотеку.
🤝 Эскроу-счета гарантирует спокойствие.
Чтобы забронировать эту квартиру бесплатно и зафиксировать цену — свяжитесь с нами прямо сейчас! 📞
Параметры новостройки в ЖК Хорошее решение:
• Номер квартиры - 1
• Вариант отделки - грубая отделка
• Площадь - 66.89 м²
• Жилая Жилая - 24.11 м²
• Площадь кухни - 24.78 м²
• Класс жилья - Эконом
• Комнат - 2-комнатная квартира
• Этаж - 1
• Дом - 11-этажный
Полезная информация о ЖК Хорошее решение
Новый жилой комплекс «Хорошее решение» от Специализированного застройщика «Сириус» расположен в Курчатовском районе Новосибирска на ул. Генерала Мартынова. Жилой комплекс «Хорошее решение» представляет собой панельное здание.
Застройщиком спроектированы квартиры с различными планировками. Внутренняя отделка не осуществляется.
Благоустройство прилегающей территории включает в себя организацию детских игровых и спортивных площадок, гостевой автостоянки, а также озеленение. В шаговой доступности детские сады, школы, продуктовые магазины, остановки общественного транспорта.
Ввод объекта в эксплуатацию запланирован на 2 квартал 2025 года.
Срок сдачи: 2 кв. 2025 г.
Срок сдачи: 2 кв. 2025 г.
Площади квартир
Этажность
Отделка
Класс жилья
Количество корпусов
Тип стен