Челябинск, Маршала Чуйкова, 28 стр
Площадь
Жилая
Кухня
Отделка
Класс жилья
Комнат
Номер кв.
Этаж
Продается 2-комнатная квартира в новом жилом комплексе "ЖК Хорошее решение" 🏢
Квартира расположена на 1-м этаже 11-этажного дома.
Отличный вариант для инвестиций.
Удобная планировка: 📐
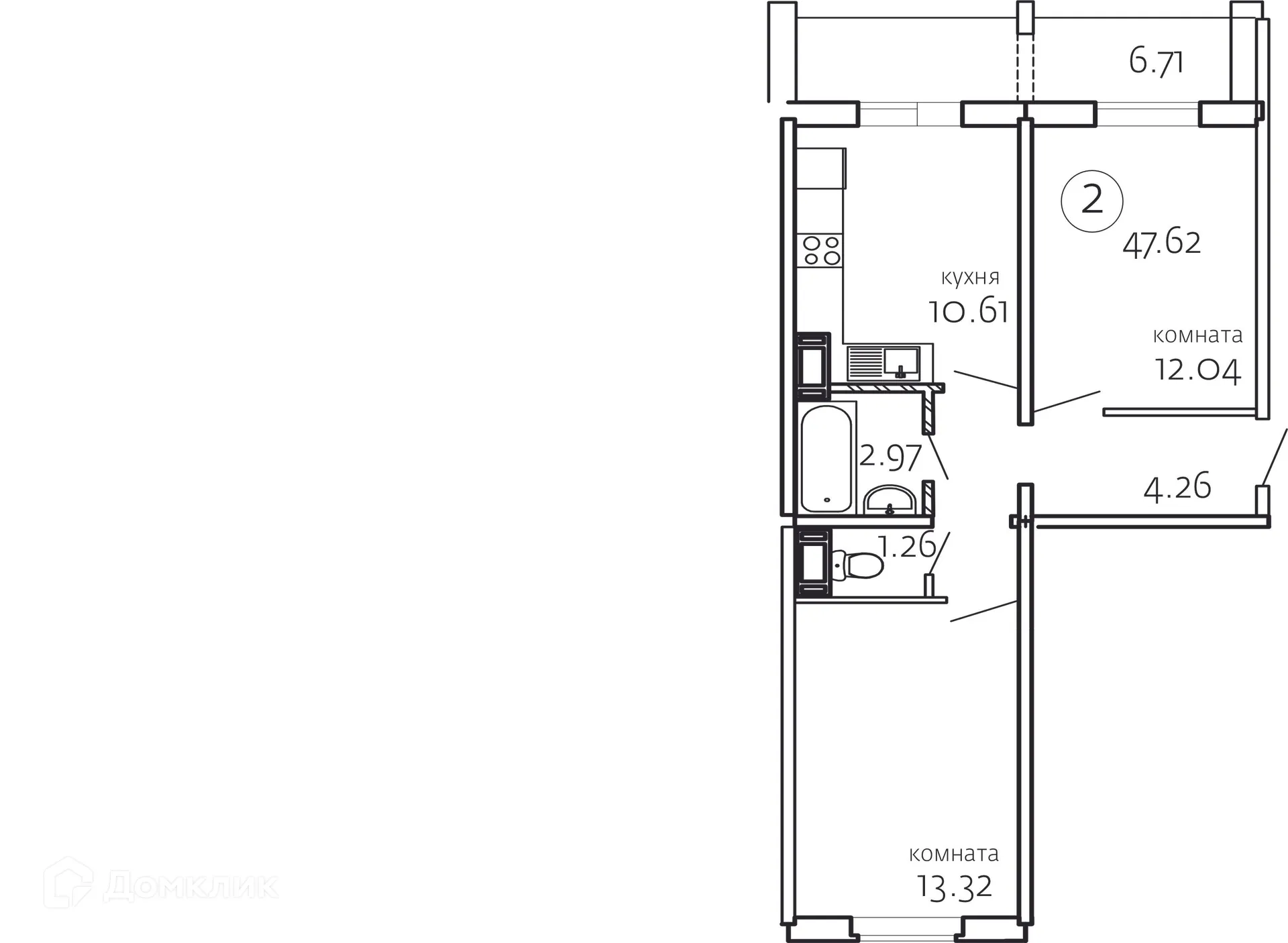
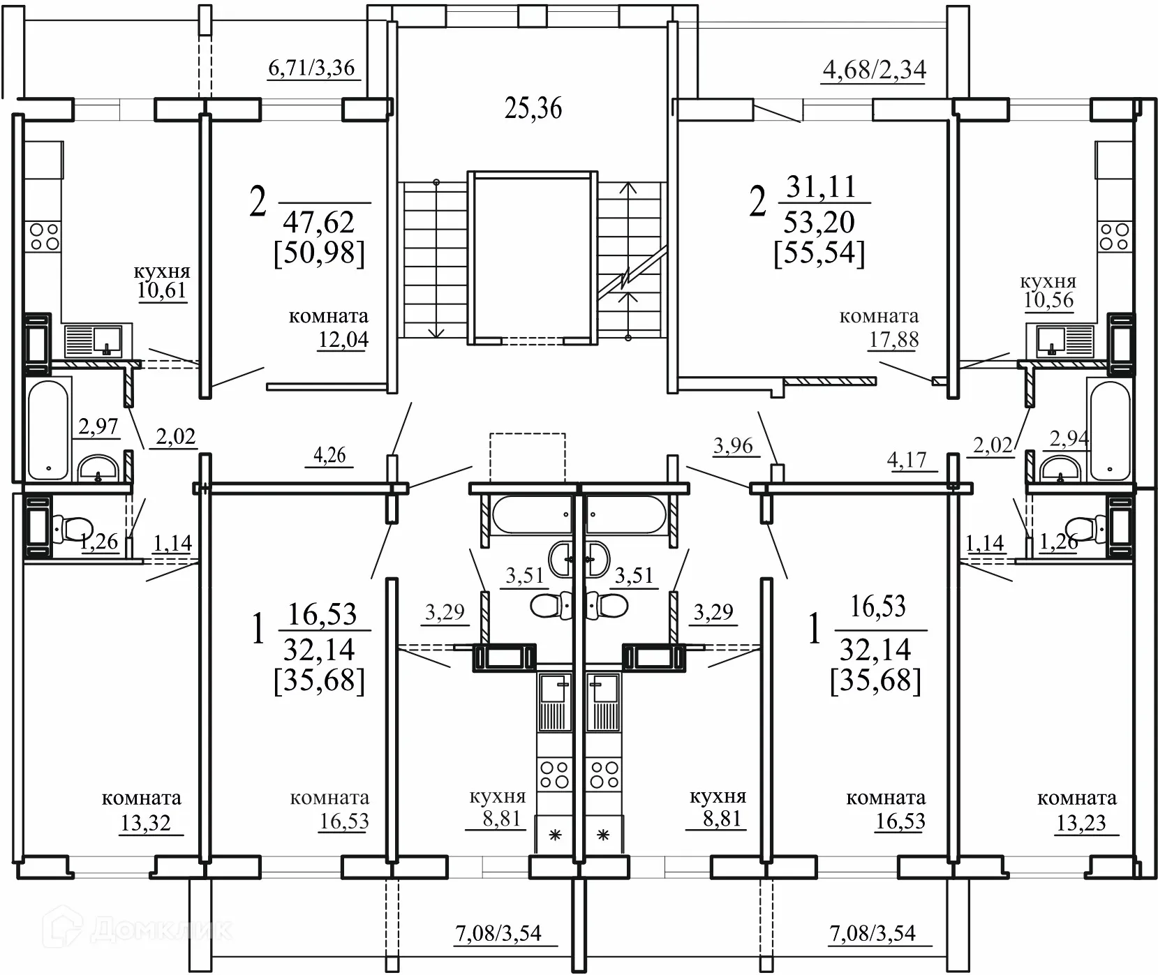
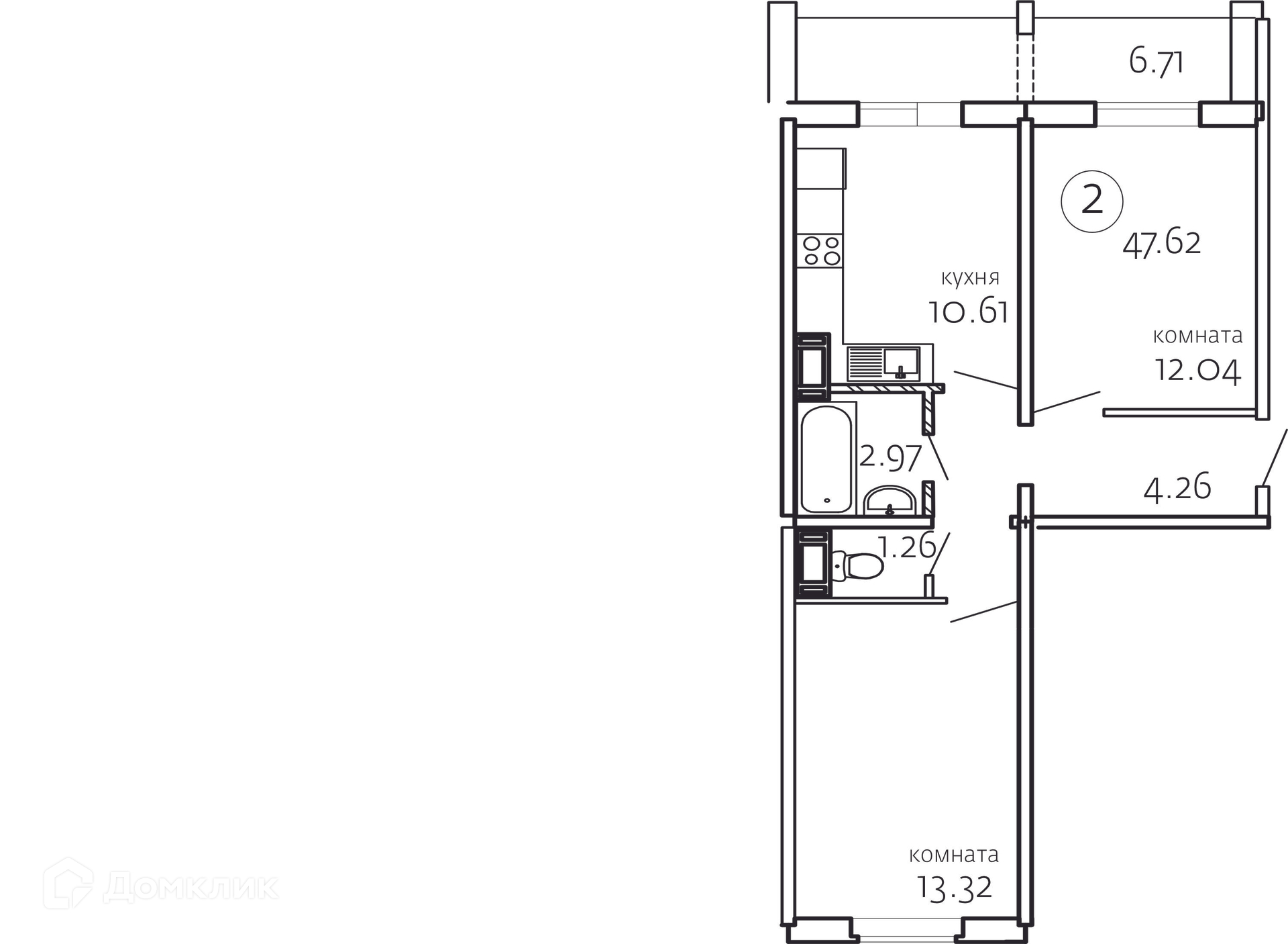
✅ Общая площадь: 47.62 м².
✅ Уютная жилая площадь: 25.36 м².
✅ Кухня: 10.61 м² — место для кулинарных шедевров.
Преимущества квартиры: ✨
🔧 Вариант отделки: без ремонта. Минимум грязных работ.
🌞 Большие окна наполняют помещения естественным светом.
🌿 Класс жилья: Эконом — благоустроенная территория.
Выгодные условия покупки: 💰
💳 Ипотека от 44 578 руб/мес.
🏦 Подходит под семейную и IT ипотеку.
🤝 Покупка напрямую от застройщика гарантирует спокойствие.
Чтобы узнать подробности и проверить актуальную стоимость — свяжитесь с нами прямо сейчас! 📞
Параметры новостройки в ЖК Хорошее решение:
• Номер квартиры - 4
• Вариант отделки - без ремонта
• Площадь - 47.62 м²
• Жилая Жилая - 25.36 м²
• Площадь кухни - 10.61 м²
• Класс жилья - Эконом
• Комнат - 2-комнатная квартира
• Этаж - 1
• Дом - 11-этажный
Полезная информация о ЖК Хорошее решение
Новый жилой комплекс «Хорошее решение» от Специализированного застройщика «Сириус» расположен в Курчатовском районе Новосибирска на ул. Генерала Мартынова. Жилой комплекс «Хорошее решение» представляет собой панельное здание.
Застройщиком спроектированы квартиры с различными планировками. Внутренняя отделка не осуществляется.
Благоустройство прилегающей территории включает в себя организацию детских игровых и спортивных площадок, гостевой автостоянки, а также озеленение. В шаговой доступности детские сады, школы, продуктовые магазины, остановки общественного транспорта.
Ввод объекта в эксплуатацию запланирован на 2 квартал 2025 года.
Срок сдачи: 2 кв. 2025 г.
Срок сдачи: 2 кв. 2025 г.
Площади квартир
Этажность
Отделка
Класс жилья
Количество корпусов
Тип стен