Челябинск, Маршала Чуйкова, 28 стр
Площадь
Жилая
Кухня
Отделка
Класс жилья
Комнат
Номер кв.
Этаж
Предлагается 3-комнатная квартира в востребованном жилом комплексе "ЖК Хорошее решение" 🏢
Квартира расположена на 1-м этаже 11-этажного дома.
Прекрасный выбор для инвестиций.
Продуманная планировка: 📐
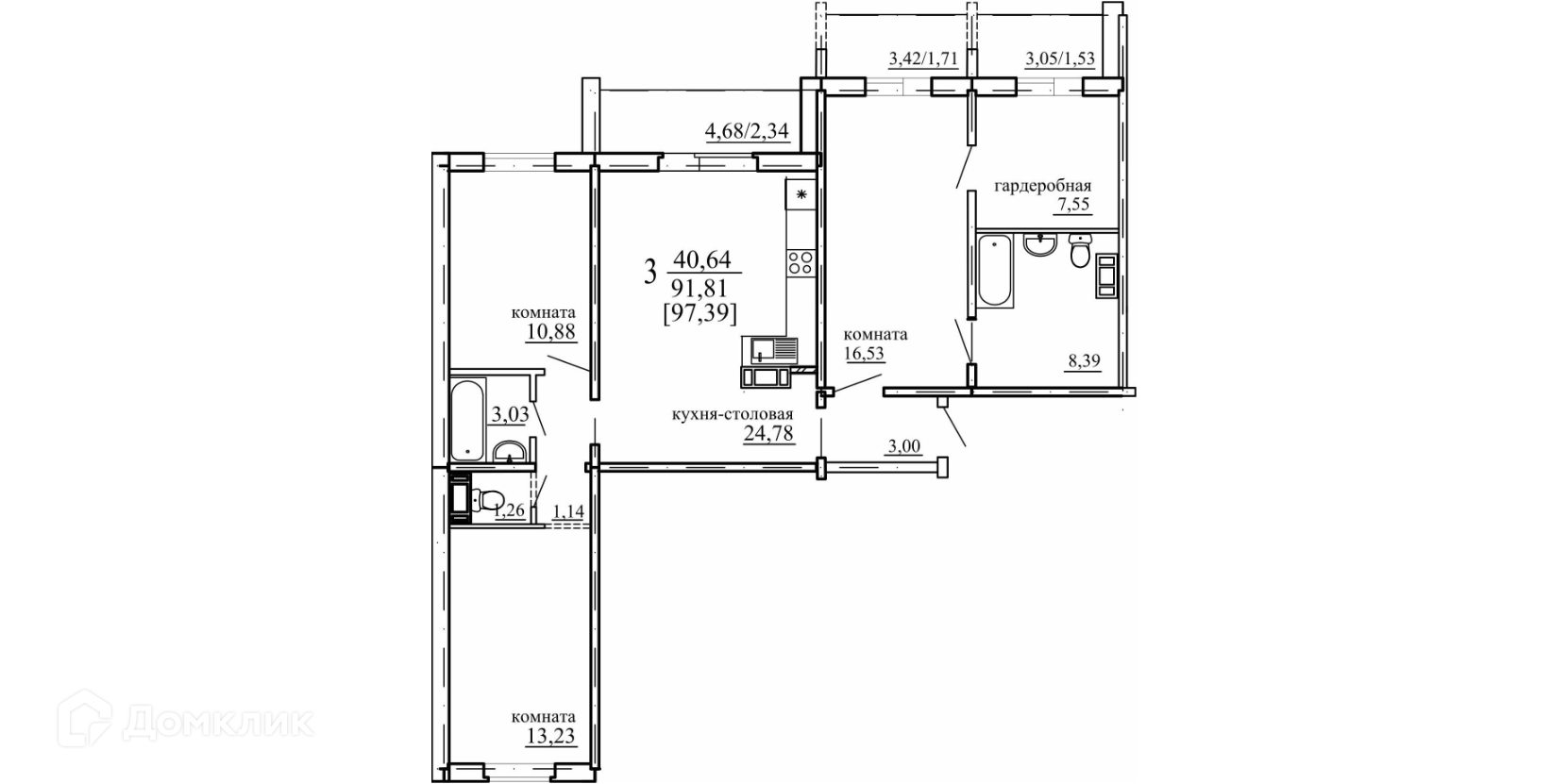
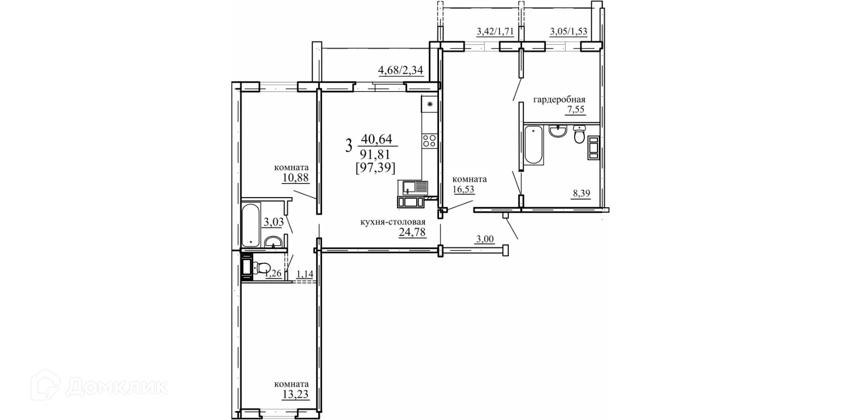
✅ Общая площадь: 92.02 м².
✅ Просторная жилая площадь: 40.81 м².
✅ Кухня: 24.78 м² — эргономичное пространство.
Особенности квартиры: ✨
🔧 Вариант отделки: грубая отделка. Минимум грязных работ.
🌞 Большие окна наполняют помещения естественным светом.
🌿 Класс жилья: Эконом — благоустроенная территория.
Финансы и ипотека: 💰
💳 Ипотека от 66 263 руб/мес.
🏦 Доступны льготные программы господдержки.
🤝 Безопасная сделка гарантирует спокойствие.
Для бесплатного бронирования и проверить актуальную стоимость — свяжитесь с нами прямо сейчас! 📞
Параметры новостройки в ЖК Хорошее решение:
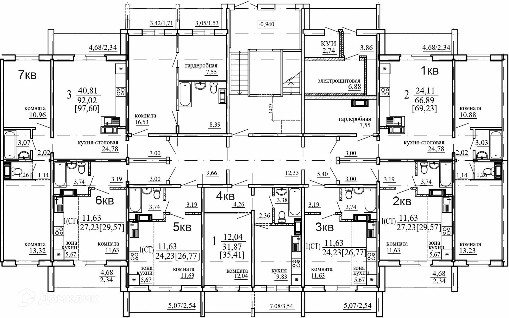
• Номер квартиры - 7
• Вариант отделки - грубая отделка
• Площадь - 92.02 м²
• Жилая Жилая - 40.81 м²
• Площадь кухни - 24.78 м²
• Класс жилья - Эконом
• Комнат - 3-комнатная квартира
• Этаж - 1
• Дом - 11-этажный
Полезная информация о ЖК Хорошее решение
Новый жилой комплекс «Хорошее решение» от Специализированного застройщика «Сириус» расположен в Курчатовском районе Новосибирска на ул. Генерала Мартынова. Жилой комплекс «Хорошее решение» представляет собой панельное здание.
Застройщиком спроектированы квартиры с различными планировками. Внутренняя отделка не осуществляется.
Благоустройство прилегающей территории включает в себя организацию детских игровых и спортивных площадок, гостевой автостоянки, а также озеленение. В шаговой доступности детские сады, школы, продуктовые магазины, остановки общественного транспорта.
Ввод объекта в эксплуатацию запланирован на 2 квартал 2025 года.
Срок сдачи: 2 кв. 2025 г.
Срок сдачи: 2 кв. 2025 г.
Площади квартир
Этажность
Отделка
Класс жилья
Количество корпусов
Тип стен